
一體化智能楔形流量計量表
一體化智能楔形流量計量表型號生產報價廠家,本流量儀產品型號屬于楔形流量計分類,更多的一體化、智能、楔形、流量控制儀直銷價格報價歡迎您來電咨詢,下面是一體化智能楔形流量計量表產品資料詳情。
一體化楔形流量計傳感器的檢測件是楔形孔板,它是一個V字形楔塊(又稱楔形節流件),它的圓形頂角朝下,這樣有利于含懸浮顆粒(粉塵、泥沙及其他固體顆粒)流體和高粘稠液體流過時在節流件上游側不會產生滯流,也不會在節流體上、下游側發生固體顆粒或粘稠物的積存,從而確保發楔形流量傳感器長期運行的穩定性,這樣高的長期運行精度在流量測量領域是迄今少見的。
一體化智能型楔形流量計流量傳感器的檢測件是楔形孔板,它是一塊V形節流件,它的圓形頂角朝下,這樣有利于含懸浮顆粒(粉塵、泥沙及其它固體顆粒)流體和高粘度液體流過時在節流件上游側不會產生滯流,也不會在節流體上、下游側發生固體顆粒或粘稠物的積存,從而確保楔形流量傳感器長期運行穩定性:±0.1FS%Y,這樣高的長期運行精度在流量測量領域是迄今少見的。楔形流量傳感器的結構如圖1所示
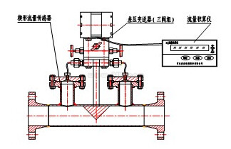
一體化智能型楔形流量計的組成如圖2所示。它由一體化楔形流量計變送器和人工智能流量運算器兩部分組成。其中一體化楔形流量變送器由楔形流量傳感器、轉接板和差壓變送器構成。
一體化楔形流量計的工作原理是:當充滿管道的流體流經楔形孔板時,其下游側動壓增加,靜壓減小,由差壓變送器在楔形孔板下游側測出流體的差壓,并將差壓信號轉換為4~20mA.dc電流信號輸出,此信號經過人工智能流量運算器處理后,其示值為流量值。
以上就是一體化流量計 智能流量計 楔形流量計 產品全部內容,歡迎您來電咨詢一體化流量儀智能流量儀楔形流量儀 的選型、報價。
本文地址:http://www.china-riffle.com/pro/xxllj/134.html 轉載請勿刪除![一體化智能楔形流量計量表]
- 上一篇:楔形流量計量表選型,楔形流量計量表廠家
- 下一篇:楔形流量計